PROJECTS
Kitchen of Elements / Istanbul
Belsize Grove Flat Renovation / London
Dripping Table
Blenheim Gardens House / London
Southgate Project / London
Villa in Saudi Arabia
Bucharest Tower
Leaf Tower
House of Arts and Culture in Beirut
A Shelter Like Home
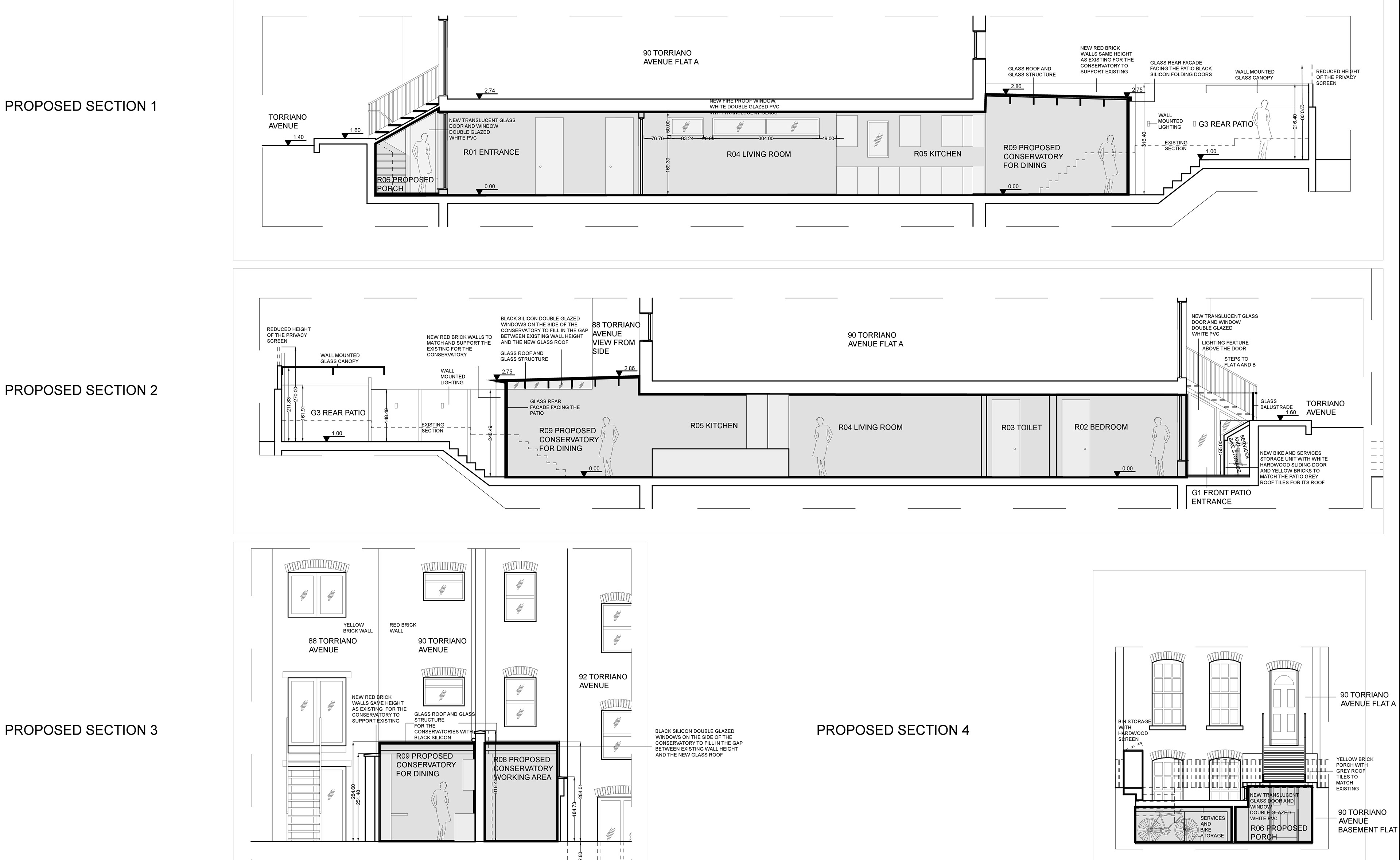
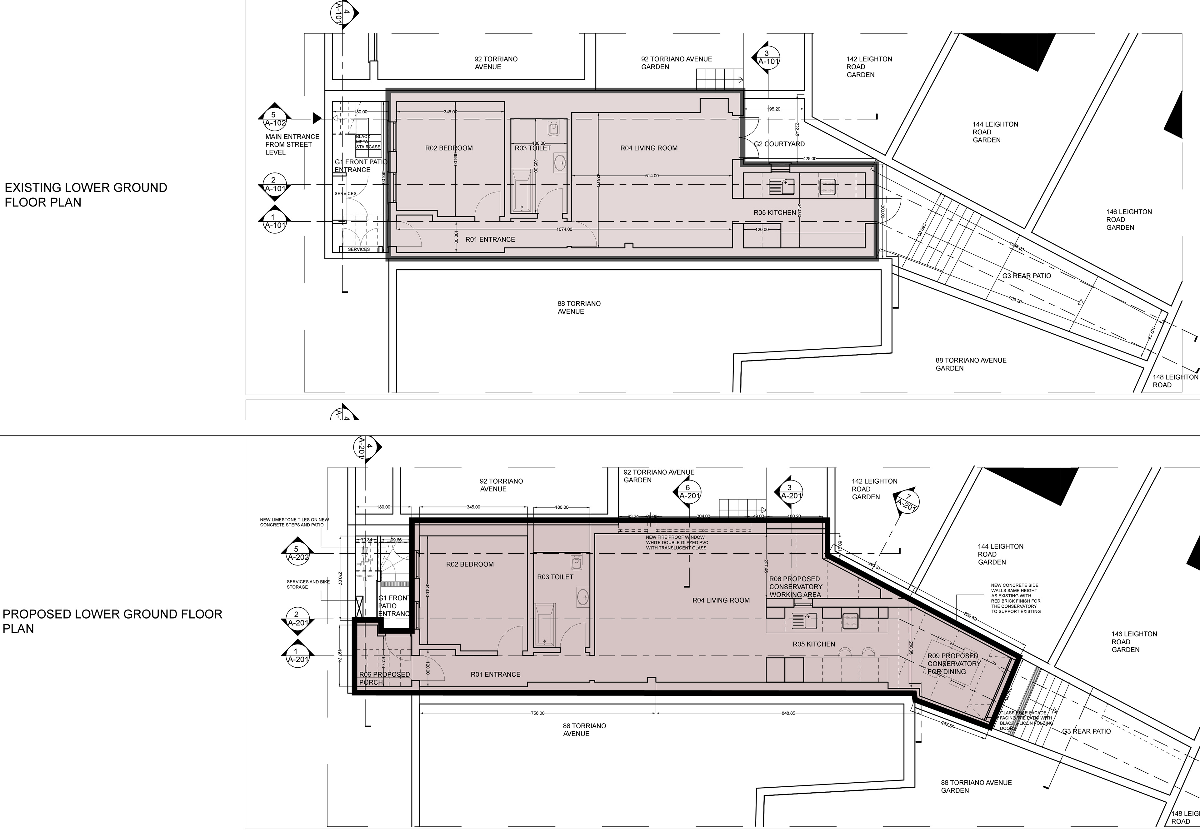
Kentish Town Flat Extension Project
Parametric Villa Design
SKETCHES
Library of Wisdom
Ziggy Table
Torn Butterfly
Dantelle Pendant Necklace
Molecular Stool
Danzer Shelf
Bubble Sofa
Sponge Space
PEOPLE
CONTACT
SZ Design London
PROJECTS
Kitchen of Elements / Istanbul
Belsize Grove Flat Renovation / London
Dripping Table
Blenheim Gardens House / London
Southgate Project / London
Villa in Saudi Arabia
Bucharest Tower
Leaf Tower
House of Arts and Culture in Beirut
A Shelter Like Home
Kentish Town Flat Extension Project
Parametric Villa Design
SKETCHES
Library of Wisdom
Ziggy Table
Torn Butterfly
Dantelle Pendant Necklace
Molecular Stool
Danzer Shelf
Bubble Sofa
Sponge Space
PEOPLE
CONTACT
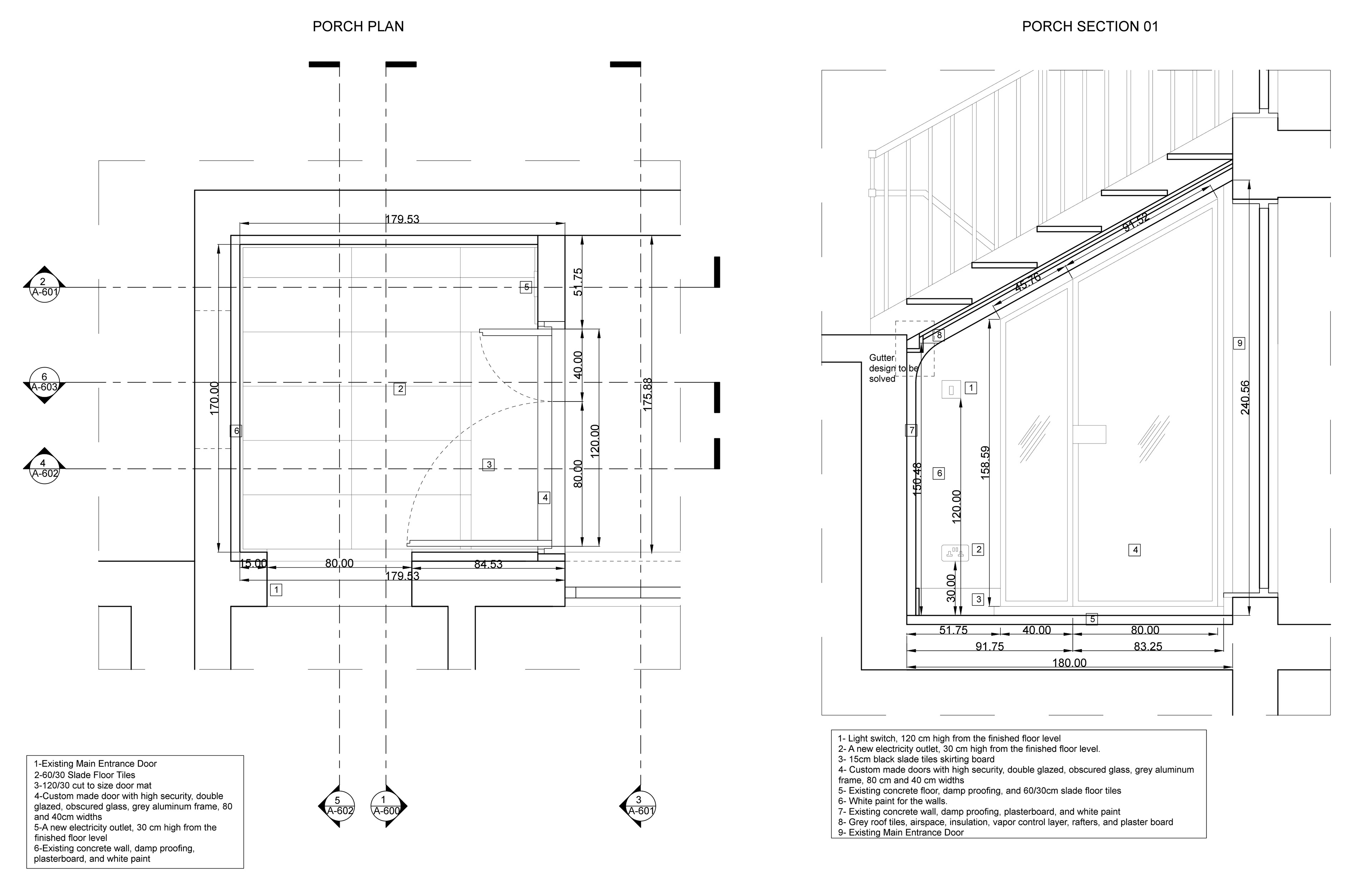
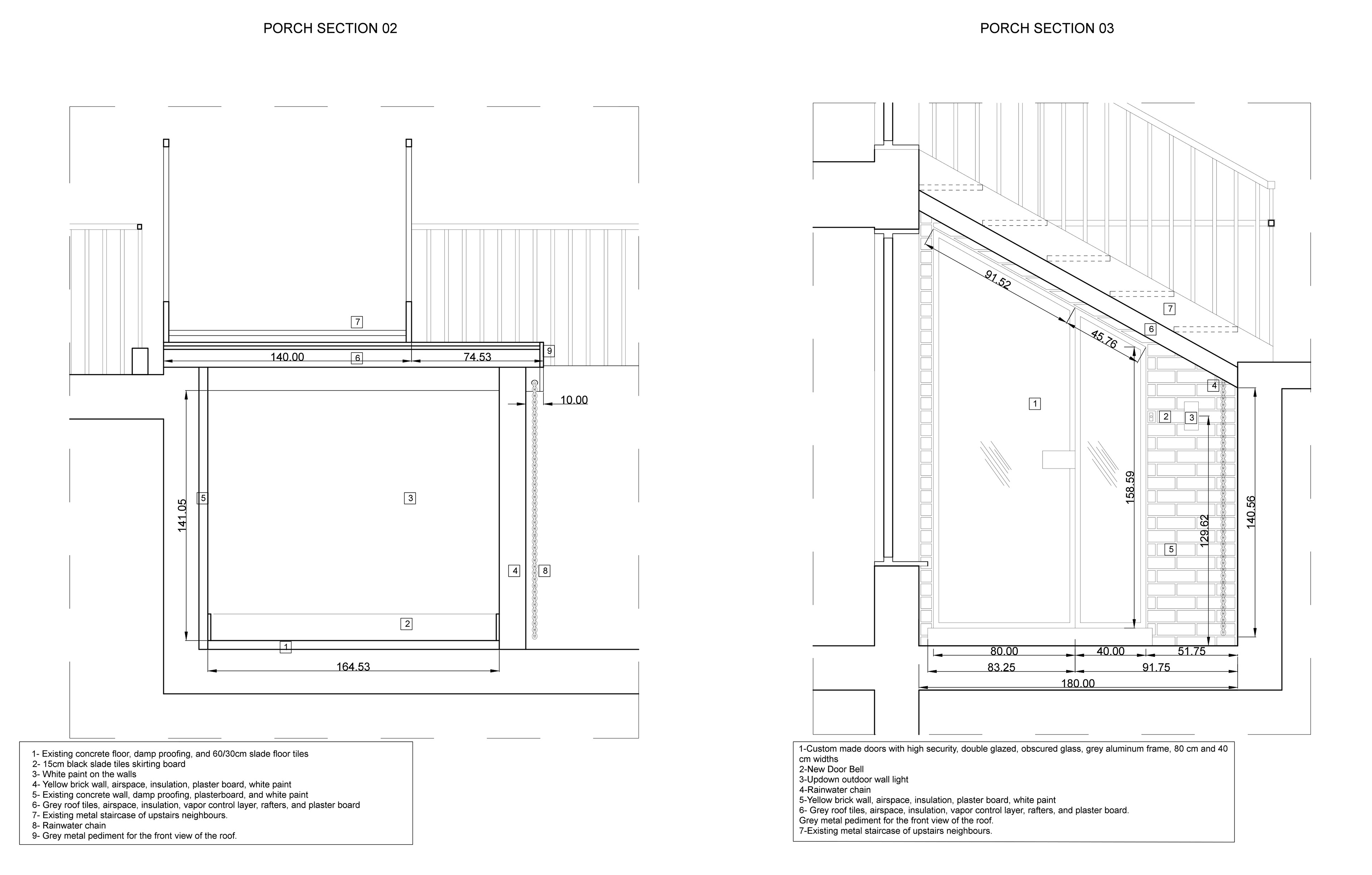
Kentish Town Flat Extension Project
Full Planning Permission Granted by Camden Council
Construction drawings of the porch
Construction drawings of the porch
↑
Back to Top